
居抜き
成瀬カントリービルA-2



物件詳細情報
- 情報登録/更新日
- 2025年05月01日
- 物件ID
- 5180
- 所在地
- 宮城県仙台市青葉区国分町二丁目9-36
- 最寄駅
仙台市営地下鉄南北線 勾当台公園 徒歩5分
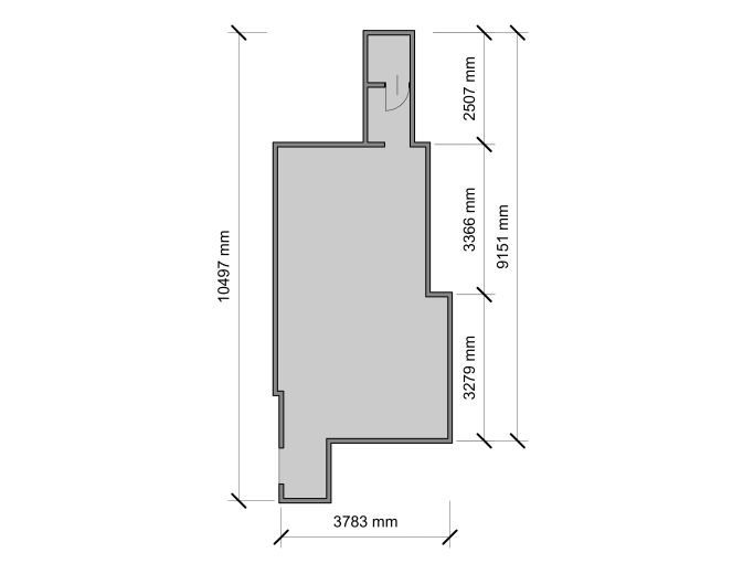
- 面積
- 10.85坪 (35.87㎡)
- 所在階
- 地上2階
- 階建て
- 地上4階 地下1階
- 駐車場
- ー
- 飲食店の種類
- 建築構造
- 鉄筋コンクリート造(RC造)
- 賃料
- 151,900円
- 坪単価
- 14,000円
- 管理費/共益費
- 27,125円
- 保証金
- 無し
- 敷金
- 10ヵ月
- 礼金
- 1ヵ月
- 仲介手数料
- 1ヵ月
- その他費用
- 解約時の償却情報
- 更新料
- 無し
- 築年月(経過年)
- 1975年10月 (築49年11ヶ月)
- 契約種別
- 普通借家
- 契約期間
- 3年
- 取引態様
- 一般媒介
- スケルトン物件・居抜き物件
- 居抜き物件
- 業態
- 居抜き造作譲渡料
- 無し
- 現況
- 空
- 引渡可能時期
- 相談

〒983-0036 宮城県仙台市宮城野区苦竹3丁目4-5
宮城県知事免許(5)第4879号
TEL 022-236-2577 / FAX 022-236-2578
Email:info@kanesa-p.com
\物件情報をスマホで見る/
CONTACT US
仙台市の飲食店向け物件に関する
お問い合わせ
受付時間 9:00~17:00(土日祝は除く)







